巴西公寓風長型屋改造(二)
2013-11-26
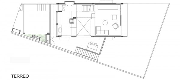
說到長型屋,一般會聯想到只有前后靠窗位置較為明亮的客廳及廚房,再來就是陰暗不通風的中段走廊了。如果中段隔間的臥室或浴室還沒有對外窗,夏天時更是會讓人悶到發暈!狹長型的房子若是規劃不當,除了最要命的通風和采光問題,也很容易產生畸零地,浪費寶貴的空間。當我們遇到這種老屋,該如何重新設計規劃,改造成對身心靈都健康滿分的好住宅呢?
來自巴西的GaleriaStudio設計團隊所規劃的這間長型屋,一樓空間完全沒了隔間,僅以地板高低差分區,讓溫暖陽光盡可能地撒向每個角落。開放式格局讓人一眼看過去沒有壓迫感,如果只是白墻似乎略顯單調,大面積的赫紅磚墻讓視線不飄忽,更帶來獨特的風格味道,再以家具和地毯作定位,一整個大空間也有了規律感。二樓以上則盡量減少樓層的房間數,除了可以解決采光的問題,光是每月省下的空調與照明設備用電,就十分可觀呢!








您可能還關注
- 行業新聞
- 加盟指導
- 經商寶典
- 消費資訊
回復 263707 到 家紡網 微信
隨時隨地看,還可以轉發到朋友圈哦。
隨時隨地看,還可以轉發到朋友圈哦。
熱點資訊
熱點圖文

軟裝扮“暖”節日客廳
歲末寒冬,卻是節日扎堆的歡樂時刻,家里賓客常至,其樂融融。除了將家布置得足夠喜慶,溫暖也是快樂過節的迫切需求。要讓家足夠...

流溢滿屋陽光味 塑造能量之家
將窗簾拉開,陽光就能傾斜而入,這種光影里的幸福,安靜而美好。陽光味滿溢的家,想必是每個人都愛的,陽光感的家總能引導出人們...

感受身心潔凈 小衛浴間收納最實用法則
那種把所有小物品全塞進一個大盒子的時代,已經一去不復返了,每件小物品都應該有適合自己的“家”,這個家便是越來越多進入到人...

落地窗營造獨特室內光景
這樣開闊視野的落地窗你是否也考慮過呢?冬天溫暖的太陽毫無保留的照進來,是不是很溫暖呢?我想要一扇窗,看窗外的碧水藍天,看...

小臥室打造有方 宅家族窩心體驗
想要討好終極宅,不是游戲機,不是高配置電腦,不是各種手辦……一個布局緊湊,錯落有致的小臥房,一張舒適爆棚的床,就能輕松收...
掃一掃關注微信
更多精彩等著你……
品牌投資關注榜
- 10萬以下
- 10-20萬
- 20-40萬
- 40萬以上






































































浙公網安備33010602010414號
